Узнайте, какие разделы должны быть в проекте для перепланировки вашего нежилого помещения и какие инстанции нужно пройти, чтобы согласовать все:
Оставьте заявку на консультацию
После заявки
1. Мы свяжемся с вами и расскажем: возможно ли согласовать ваш проект, какие будут сроки и стоимость.
2. Инженер предложит понятный план дальнейших действий. Вы избежите частых ошибок и штрфов.
Позвоните нам: +7 (499) 455-13-92
Топ 7 самых популярных перепланировок в нежилых помещениях:
- возведение новых стен или перегородок, а также демонтаж всех внутренних ненесущих стен;
- перенос и создание вспомогательных элементов – окон, лестниц, антресолей;
- создание новой входной группы с дверью, крыльцом;
- изменение размеров оконных или дверных проемов либо их устройство в несущих конструкциях или межквартирных перегородках;
- переоборудование окон в двери и наоборот, заложение окон;
- устройство навесов или козырьков.
Каждая перепланировка имеет свои нюансы, которые иногда зависят еще и от города. Например, чтобы сделать из окна дверь и убрать подоконный блок, всегда нужен протокол общего собрания жильцов, как и при любом согласовании фасадов.
Для нового проема в несущей стене также везде есть требование о наличии такого протокола, за исключением Химок и Люберец – здесь пока что можно согласовать это без протокола собрания жильцов.
Еще один частый вариант перепланировок, когда собственники нежилых помещений хотят убрать все перегородки, освободив пространство под торговый зал. Наши инженеры всегда готовы выехать на объект, чтобы обследовать помещение и точно сказать, какие перегородки можно сносить.
Все особенности процесса согласования знают только специалисты, которые постоянно общаются с администрациями городов, следят за изменениями законодательства, регулярно согласовывают проекты и имеют в своей практике самые разные объекты. PEREPLAN разработала свыше 5 000 проектов – нам можно доверять.
Дизайн-проект для стоматологии:

Фото стоматологии после ремонта:


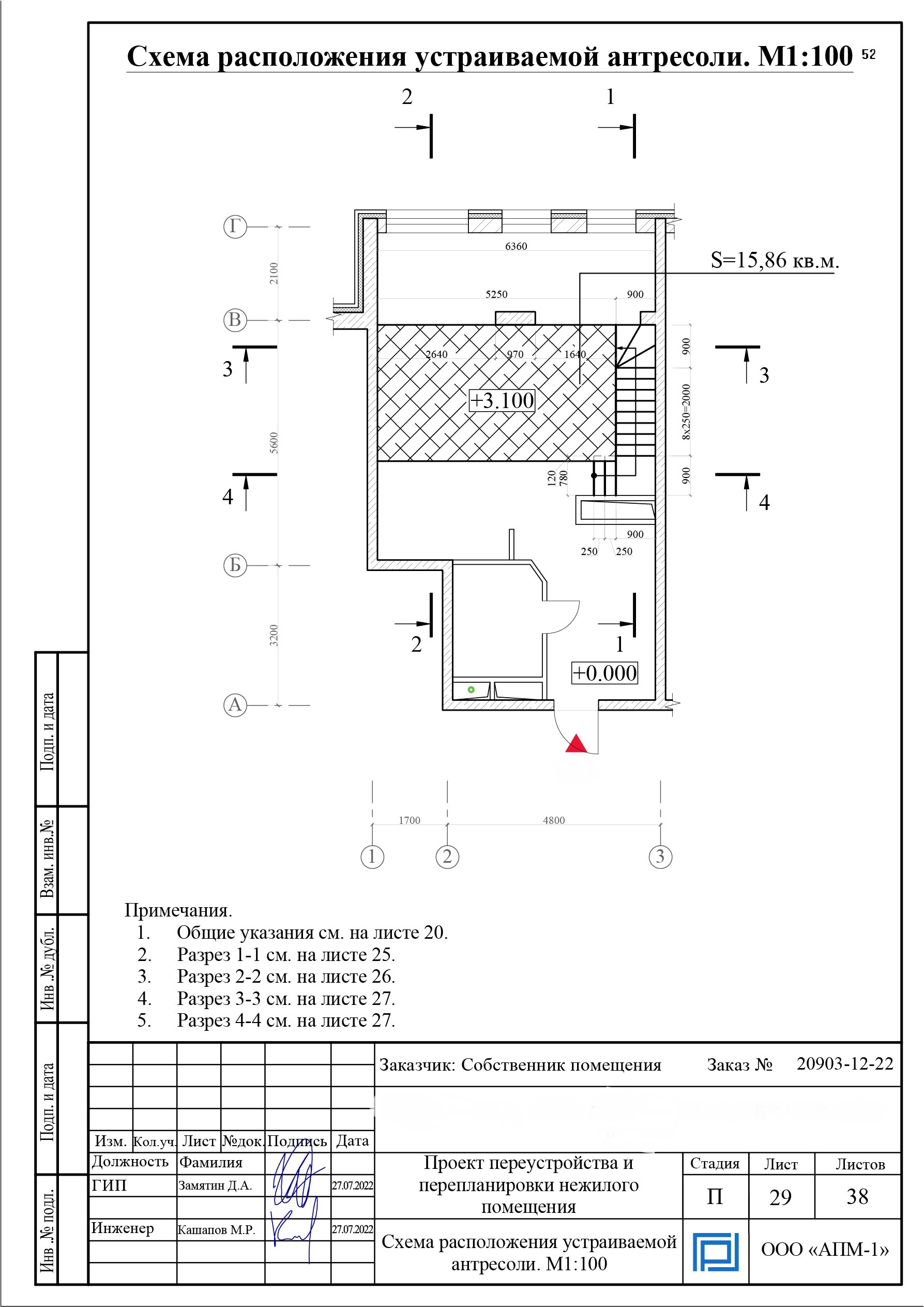
Антресоль – самая популярная перепланировка в нежилых помещениях. Если высота потолков от 4 метров, то можно законно увеличить полезную площадь помещения на 40%.

Пришлите список работ, которые вы планируете, и мы скажем, все ли из этого точно пройдет согласование
Оставьте заявку на консультацию
После заявки
1. Мы свяжемся с вами и расскажем: возможно ли согласовать ваш проект, какие будут сроки и стоимость.
2. Инженер предложит понятный план дальнейших действий. Вы избежите частых ошибок и штрфов.
Позвоните нам: +7 (499) 455-13-92
Документы для согласования и инстанции:
- паспорта собственников и учредительные документы организации и свидетельства о собственности;
- техпаспорт БТИ или только план помещения с экспликацией;
- проект перепланировки со всеми необходимыми разделами в зависимости от функционала помещения;
- техническое заключение о состоянии несущих и ограждающих конструкций.
В зависимости от ситуации и города могут потребоваться письменное согласие 73% жильцов дома, согласование проекта переустройства с Роспожнадзором, коммунальными службами и управляющей компанией, управлением по охране памятников архитектуры.
В Химках, перепланировка всегда дополнительно проходит согласование в комитете по архитектуре и градостроительству. В Реутове при согласовании нежилых помещений обязателен Роспожарнадзор.
Перепланировка апартаментов
Апартаменты в Московской области относятся к нежилым помещениям. Поэтому на их перепланировку распространяются те же правила, что и для нежилых помещений в многоквартирном доме.
Пример проекта перепланировки для нежилого помещения в жилом доме города Люберцы. Согласовывали его под художественную мастерскую:
Перепланировка нежилых помещений в отдельно стоящем здании
В Московской области любая перепланировка помещений в отдельно стоящих зданиях (торгово-развлекательных центрах, торгово-офисных, ресторанах, супермаркетах и так далее) считается реконструкцией.
Регламента по согласованию помещений в таких зданиях пока что нет. Любые узаконивания происходят через суд. Пошагово это происходит так:
- необходимо сначала подать документы в администрацию города, получив отказ, мотивированный тем, что они не занимаются данным видом согласования;
- подать документы в Министерство строительства и получить аналогичный отказ;
- с этими отказами направляться в суд и узаконивать перепланировку помещений там.
Оставьте заявку на консультацию
После заявки
1. Мы свяжемся с вами и расскажем: возможно ли согласовать ваш проект, какие будут сроки и стоимость.
2. Инженер предложит понятный план дальнейших действий. Вы избежите частых ошибок и штрфов.
Позвоните нам: +7 (499) 455-13-92
г.Балашиха;
г.Дзержинский;
г.Долгопрудный;
г.Жуковский;
г.Котельники;
г.Красногорск;
г.Ленинский;
г.Люберцы;
г.Мытищи;
г.Одинцово;
г.Реутов;
г.Химки;
г.Чехов;
ЧАСТЫЕ ВОПРОСЫ
- 1. Сначала необходимо точно понять функционал будущего помещения и получить первичные документы БТИ.
- 2. Затем нужно заказать проект перепланировки и техническое заключение – их можем сделать мы.
- 3. Если меняется фасад дома или внутренние несущие стены, затрагиваются перекрытия, для технического заключения необходимо собрать протокол собрания жильцов. Мы же внесем в проект усиление несущей стены.
В зависимости от ситуации и города могут также потребоваться письменное согласие 73% жильцов дома, согласование проекта переустройства с Роспожнадзором, коммунальными службами и управляющей компанией, управлением по охране памятников архитектуры.
- 4. Дальше полный пакет документов подается в администрацию и, если все сделано верно, выдается разрешение на перепланировку. После ремонта инспектор выходит на объект, чтобы проверить работы на соответствие проекту.
- 5. Завершается согласование обновлением данных в БТИ и Росреестре.
Все зависит от города, где оно находится – в каждом из них свои требования к проектной документации и согласованию, поэтому лучше заранее проконсультироваться в администраци.
Например в Люберцах несущие стены считаются общедомовым имуществом, и для перепланировки с их участием нужно письменное согласие 73% жильцов дома.
В зависимости от ситуации и города дополнительно к проекту перепланировки и техническому заключению могут потребоваться согласование проекта переустройства с Роспожнадзором, коммунальными службами и управляющей компанией, управлением по охране памятников архитектуры.
В Химках, перепланировка дополнительно проходит согласование в комитете по архитектуре и градостроительству.
В МО не нужно обращаться к авторам проекта дома в случае если затрагиваются несущие стены или перекрытия. Например для нового проема или объединения помещений по вертикали с помощью лестницы. Необходимо получить протокол собрания жильцов, и после этого мы сами разработаем техническое заключение и проект с усилением несущей стены.
Главное отличие в том, что перепланировка – это изменение первоначального плана БТИ нежилого помещения, который затрагивает внутренние помещения. Сносятся и возводятся перегородки, демонтируется подоконный блок, делаются новые проемы и так далее.
А реконструкция – это изменение технико-экономических показателей здания: высоты, количества этажей, площади, объема. То есть надстройка, перестройка, расширение объекта. Самые частые работы: строительство пристроек; увеличение этажности (полноценный этаж, мансарда); антресоль; устройство лифта.
Стоимость разработки проекта перепланировки и технического заключения для всех городов Московской области в PEREPLAN одинакова – от 50 000 рублей. Каждый случай индивидуален. Цена зависит от сложности перепланировки и разделов, которые необходимо внести в проектную документацию.