PEREPLAN логотип
Email скопирован! Мы отслеживаем, с каких источников к нам приходят обращения. Для этого подменяются email-адреса и номера телефонов на сайте. Так мы оцениваем эффективность рекламных каналов.
Скопировать почту
Выберите мессенджер
Напишите нам удобным способом

Архитектурный проект магазина в ТЦ

  • цены ниже среднерыночных
  • большой опыт
  • работаем по всей России
  • проект с учетом всех норм и требований
  • разработка проекта от 2 дней

нажмите, чтобы перейти к ценам ↓

Оставить заявку на бесплатную консультацию

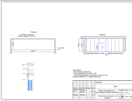
Что входит в состав архитектурного проекта?

  • Пояснительная записка;
  • Ситуационный план;
  • План после перепланировки;
  • План полов;
  • План потолков;
  • План расстановки оборудования/мебели;
  • План расстановки потолочного электрооборудования;
  • Разрезы;
  • Ведомость отделки

*состав проекта может корректироваться в зависимости от технический условий торгового центра.

Для чего нужен архитектурный проект магазина в ТЦ?

По свидетельству самой организации, расчет по нормам BOMA позволяет добиться полезных результатов сразу в нескольких направлениях. Сделки с недвижимостью становятся более прозрачными для обеих сторон, так как появляется понятный способ измерения метража помещений. Кроме того, участникам сделки становится проще сравнивать различные коммерческие предложения.

В настоящее время в российской практике распространены обмеры по стандартам BOMA и БТИ. Выбирая метод, нужно принимать во внимание, что стандарты БТИ изначально создавались для целей учета, а не для использования при коммерческих расчетах. Поэтому при их использовании для расчета арендной платы нередко случается так, что нагрузка по оплате содержания здания распределяется между арендаторами несправедливо. Сама площадь объекта может превратиться в предмет спора.

Наши консультанты
готовы ответить на все
интересующие Вас вопросы.

Вы можете связаться с нами по телефону

+7 (499) 455-13-92

Мы работаем 7 дней в неделю, с 09-00 до 18-00.

В случае, если Вы, по каким-либо причинам не смогли нам дозвониться,
Вы можете воспользоваться нашими формами обратной связи на сайте.
Наши менеджеры обязательно свяжутся с Вами, чтобы помочь решить любой Ваш вопрос.

Цены на архитектурный проект

Площадь, м2 Стоимость обмера
Помещение 0÷50 м2 15.000 руб.
Помещение 50÷100 м2 20.000 руб.
Помещение 100 и более м2 20.000 руб. +100 рублей за 1 м2

Получите консультацию специалиста или отправьте нам на предварительную оценку необходимые документы.

Наведите камеру телефона на QR-код чтобы
быстро написать нам в Whatsapp
Или напишите в Whatsapp с компьютера, для этого
у вас должно быть установлено приложение.
Написать нам в Whatsapp Написать в Whatsapp

Или напишите в Whatsapp с компьютера, для этого
у вас должно быть установлено приложение.

Наши работы

Что входит в стоимость?

Уважаемые Клиенты, у нас нет скрытых платежей, наценок и надбавок!
В указанную стоимость включены ВСЕ услуги!

Наши партнеры

Клиент 1
Клиент 2
Клиент 3
Клиент 4
Клиент 5
клиент 6
Клиент 7
Клиент 9
клиент 10
клиент 11
клиент 12
клиент 13
Клиент 8

Оставить заявку на бесплатную
консультацию

Контакты

Адрес: г. Москва, 17-й проезд Марьиной Рощи, д. 4, корпус 1. Каб. 930 , 9 этаж.
Телефон: +7 (499) 455-13-92
E-mail: info@pereplan.ru
Карта — 17-й проезд Марьиной Рощи