- Что такое антресоль и чем она отличается от этажа
- Цели и применение антресоли в квартире
- Требования к устройству антресоли
- Как согласовать антресоль в квартире
- Примеры наших проектов
- Что будет, если не согласовать антресоль
- Подведём итог
Площадь квартиры с высокими потолками можно увеличить с помощью антресоли. Например, организовать на ней спальню, детскую, кабинет, кладовую, кухню или санузел. Однако это возможно, только если согласовать антресоль и возвести её по нормативам. В статье рассказываем обо всех нюансах такой перепланировки.
Что такое антресоль и чем она отличается от этажа
Антресоль, этаж и мезонин — в чём разница
Антресолью в быту принято называть высокие полки для хранения редко используемых вещей. Но ещё это может быть площадка, которая способна выдерживать мебель, бытовую технику и людей. Человек может стоять на антресоли и под ней в полный рост и комфортно перемещаться. Иногда застройщики сами проектируют антресоли, однако чаще это делают собственники при перепланировке. О такой конструкции мы и будем рассказывать в статье.
Этаж отличается от антресоли тем, что он является частью всего здания, выделяет квартиры, а также общедомовые помещения по вертикали. Этажи отделяются друг от друга несущими перекрытиями и составляют структуру (этажность) всего здания.
Мезонин — надстройка над перекрытием верхнего этажа с вертикальными наружными стенами, которые выступают за пределы плоскости ската крыши. Мезонин может спроектировать и возвести застройщик, но не собственник квартиры, т. к. это изменяет характеристики здания и считается реконструкцией.
Правовой статус антресоли в жилом помещении
Антресоль — это площадка, которая по нормативам может занимать максимум 40% от общей площади квартиры. Она не является перекрытием, которое разделяет здание на этажи, то есть возведение антресоли не делает жильё двухэтажным. Однако площадка отображается в техническом паспорте БТИ и в выписке ЕГРН в виде отдельного плана.
В документах на площадке указано одно или несколько помещений — по назначению ограничений нет. Например, кухня, комната, кладовая или санузел, на которые можно подняться по стационарной лестнице (ступени тоже отображаются на плане).
Возведение антресоли — это перепланировка, и её нужно согласовать в Мосжилинспекции, а также внести в технический паспорт БТИ и выписку ЕГРН. Помещения на площадке и под ней должны соответствовать требованиям к минимальной площади, высоте, освещённости и размещаться с учётом правил «мокрых» зон.
Для размещения «мокрых» зон на антресоли есть одно преимущество — санузел на площадке антресоли допускается располагать над кухней, которая находится под площадкой. В остальном применяются стандартные нормы для многоквартирных домов.
Цели и применение антресоли в квартире
Спальня, кабинет, детская, гардеробная и другие
- Спальня на антресоли физически отделена от основного пространства квартиры, что создаёт ощущение комфорта и уединения. Спящие находятся как бы в отдельной плоскости от остальной квартиры — в отрыве от посторонних звуков и перемещений других жителей. Минимальная площадь для размещения спальни — 8 м². Также обязательно естественное освещение.
- Кабинет. Для удалённой работы в квартире идеально иметь не просто стол в углу спальни или гостиной, а специальное помещение. После окончания рабочего дня можно спуститься в основное пространство квартиры, психологически переключиться на домашние дела и отдых.
- Детская. Ребёнок получает отдельную зону для игр, где он организовывает всё так, как ему хочется. При этом родители могут слышать, чем он занят — у площадки нет перегородок (но лучше сделать ограждение для безопасности). Когда ребёнок подрастёт, наверху у него сохранится личное пространство с кроватью и рабочей зоной.
- Гардеробная. Её можно организовать над спальней, чтобы одежда и другие вещи не занимали жилую площадь. Если из спальни также есть индивидуальный вход в санузел, получится полноценное личное пространство (мастер-спальня).
Если вы хотите законно организовать на антресоли эти или другие помещения, напишите нам — бесплатно проконсультируем и ответим на все вопросы:
Бесплатная консультация
по вашему проекту
После заявки
-
1
Свяжемся с вами
Перезвоним в течение 2 минут и расскажем о возможности согласования, сроках и стоимости проекта.
-
2
Составим план
Инженер предложит понятный план дальнейших действий. Вы избежите частых ошибок и штрафов.
Когда антресоль позволяет увеличить полезную площадь
Если возводимая площадка по характеристикам соответствует антресоли, её площадь прибавляется к площади квартиры. Однако она не может занимать более 40% от общей площади жилья. В Москве этот процент рассчитывается с учётом изменений после перепланировки.
Обычно после перепланировки общая площадь немного уменьшается из-за возведения новых конструкций, отделки стен и устройства шумоизоляции. Организация антресоли может её значительно увеличить, однако часть площади непосредственно под стационарной лестницей придётся вычесть (на участке ниже 1,6 м).
Требования к устройству антресоли
Минимальная высота помещения для возведения антресоли
Минимальная высота помещения для возведения антресоли — 4,4 м. Она рассчитывается исходя из нормативной высоты вспомогательного помещения (кроме кухни) — от 2,1 м, одинаково на площадке и под ней. Также учитывается толщина самой площадки.
Для кухни и комнаты минимальная высота составляет 2,5 м. Например, если снизу планируется разместить кухню, а сверху жилую комнату — общая высота помещения должна быть более 5 м.
Квартиры, которые подходят для возведения антресоли, обычно встречаются в старом фонде или новостройках. В серийных советских панельных домах помещения подобной высоты не проектировались.
Если вы покупаете квартиру с антресолью, важно проверить, чтобы она была возведена законно. Запросите у продавца подтверждающие документы: технический план, а также акт о завершённом переустройстве и перепланировке от Мосжилинспекции. Только эти документы на 100% доказывают, что изменения согласованы. Встречаются ситуации, когда перепланировка внесена в ЕГРН, однако техплана и акта нет — это результат мошеннических действий, ответственность за которые может перейти на нового собственника.
Ещё одна опасная ситуация — когда антресоль занимает всю площадь помещения (по нормам она должна занимать до 40%). Такая квартира может позиционироваться как двухэтажная, но это незаконно, и демонтировать «второй этаж» придётся новому собственнику за свой счёт.
Нормы по освещению, вентиляции и лестничному доступу
Лестница
У антресоли должна быть стационарная лестница. Для вспомогательных помещений (кроме кухни) параметры такие:
- Уклон 1:1,25 (38,7°);
- Высота подступенка — 20 см, глубина проступи — 25 см (минимальные параметры, которые можно увеличить, но без увеличения уклона);
- Ширина проступи — 70 см.
Если наверху находится комната или кухня, требования к лестнице такие же, кроме ширины проступи — от 90 см.
Освещение и вентиляция
Нормы по освещению и вентиляции зависят от назначения помещений на площадке и под ней. У комнаты и кухни должно быть естественное освещение. Оно попадает через «второй свет» — открытое пространство, которое появляется из-за того, что площадка не полностью разделяет помещение на его высоту, а частично.
Если размещается кухня или санузел, нужно организовать естественную вентиляцию. При этом вентиляция санузла должна подключаться к существующему вентиляционному отверстию в санузле от застройщика, а кухонная — к вентиляционному отверстию в изначальной кухне.
Требования к материалам и конструкции (нагрузка, перекрытия)
В проект перепланировки добавляется раздел с конструктивными решениями. В нём указано расположение стоек, рассчитана допустимая нагрузка на перекрытие и несущая способность площадки. Для старого фонда, где междуэтажные перекрытия дома могут быть выполнены из деревянных балок, расчёт более сложный, чем для новостройки с перекрытиями из монолитного железобетона.
Стойки
Чаще всего площадку размещают на стойках на перекрытии, а не прикрепляют к несущим стенам. Стойки — самый надёжный вариант по нескольким причинам:
- Проще распределить нагрузки;
- Можно сделать площадку сложной формы;
- Не требуются дополнительные расчёты на несущие стены.
Стойки стараются расположить близко к стенам или перегородкам, чтобы скрыть их в зашивке. Однако есть варианты, когда они видны — это зависит от особенностей конструкции или стиля интерьера.
Материалы
Конкретных требований к материалам для антресоли нет. Главное — они должны быть надёжными и определяться расчётом. Обычно площадку выполняют из металлических балок. Сверху кладут фанеру и напольное покрытие, либо профлист и стяжку.
При устройстве стоек на деревянных или металлических балках междуэтажного перекрытия требуется предварительно вскрыть пол. Нужно выяснить, как лежат балки, чтобы правильно опереть стойки. Есть риск обнаружить гнилые деревянные балки, которые не смогут выдержать точечную нагрузку от стоек.
Подробнее о том, какие нюансы нужно учитывать при возведении антресоли, мы рассказали в видео:
Как согласовать антресоль в квартире
Организация антресоли — это перепланировка, которую нужно согласовать в Мосжилинспекции, потому что конструкция изменяет план квартиры в техническом паспорте и в выписке ЕГРН.
Пакет документов
Для оформления перепланировки в Москве нужно подать запрос через сайт mos.ru. К запросу необходимо приложить документы:
- Выписка ЕГРН — подтверждает право собственности;
- Технический паспорт — содержит информацию о характеристиках и состоянии квартиры;
- Доверенность, если запрос подаёт представитель собственника;
- Письменное согласие всех собственников жилья, если их несколько.
Техническое заключение и проект
Проект перепланировки и техническое заключение — обязательные документы для согласования. Организация в квартире массивной площадки, на которой будут располагаться новые помещения — сложные работы, поэтому перед их началом нужно провести техническое обследование и сделать конструктивные расчёты.
Заказать изготовление проекта перепланировки вы можете у нас, в компании PEREPLAN. Мы состоим в СРО «МежРегионПроект», более 10 лет разрабатываем и согласовываем изменения планировок.
Заказать техническое заключение о возможности выполнения предстоящих работ по устройству антресоли можно у автора дома или в ГБУ «Экспертный центр».
Этапы согласования: от заявки до внесения в ЕГРН
- Подготовить исходную документацию, проект перепланировки, техническое заключение;
- Отправить заявку в Мосжилинспекцию и получить разрешение на начало работ с перепланировкой;
- Выполнить работы без отступлений от проекта;
- Заказать приёмку и получить акт о завершённых работах на объекте;
- Зафиксировать обновлённую планировку в техпаспорте МосгорБТИ и ЕГРН.
Стоимость согласования и проектирования
Стоимость согласования и проектирования антресоли в компании PEREPLAN может отличаться в зависимости от конкретного объекта, сложности и объёма работ.
Минимальные цены:
Изготовление проектной документации — от 80 000 руб.
Согласование перепланировки — от 100 000 руб.
Особенности для нежилых помещений в МКД
Антресоль в нежилом помещении в жилом здании должна соответствовать тем же требованиям, что и в квартире. Её тоже нужно согласовывать в Мосжилинспекции. Отличается только минимально допустимая высота — 2,2 м на площадке и под ней (напомним, что в квартире — 2,1 м).
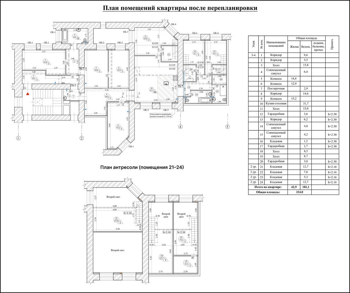
Примеры наших проектов
Увеличение площади существующей антресоли
Квартира находится на 1 этаже 9-этажного дома 2022 года постройки. Общая площадь — 48,3 м². Высота помещений — 4,7 м. Несущие конструкции дома (в том числе перекрытия) выполнены из монолитного железобетона.
До перепланировки в квартире уже была возведена антресоль площадью 6,3 м² — на ней располагалась кладовая. Также в квартире была 1 комната, коридор, кухня, совмещённый санузел и терраса.
Увеличили площадь антресоли в 2,5 раза (с 6,3 м² до 15,8 м²). На одной её части осталась кладовая, а на другой организовали холл, где будет расположена зона отдыха. Перенесли лестницу — теперь на площадку можно подняться из обеденной зоны кухни-столовой, а не из комнаты, как раньше. Благодаря возведению дополнительной антресоли общая площадь квартиры увеличилась на 8,1 м².
Создание антресоли в старом фонде
Квартира находится на 3 этаже 6-этажного дома 1899 года постройки. Её общая площадь — 197,3 м². Высота помещений — 4,6 м. Несущие стены выполнены из кирпича, а перекрытия — из металлических балок с деревянным и кирпичным заполнением. В квартире находились 6 комнат, 6 коридоров, кухня, туалет и холл-ванна.
Возвели 3 антресоли с индивидуальными стационарными лестницами. В проекте на всех площадках указаны кладовые, однако на одной из них заказчики хотят устроить зону отдыха, а на другой — рабочее место. После перепланировки образовались и другие новые помещения. Например, 3 гардеробные, 3 совмещённых санузла и постирочная. После устройства антресоли площадь квартиры увеличилась на 26,7 м².
Что будет, если не согласовать антресоль
За несогласованную перепланировку предусмотрен штраф в 2500 руб. Кроме того, собственнику могут выдать предписание на демонтаж антресоли — стоимость этого во много раз превышает размер штрафа.
Однако самое худшее последствие незаконного возведения антресоли — обрушение её конструкции или даже междуэтажного перекрытия, на которое она опирается стойками. Несогласованные работы обычно делаются без проекта и конструктивных расчётов — из-за этого могут пострадать не только жители квартиры, но и всего дома.
Подведём итог
Антресоль — сложная конструкция. Для её устройства нужно выполнить специальные расчёты и получить согласование в Мосжилинспекции. Эта перепланировка значительно улучшает квартиру — добавляет площадь для полезных помещений, а также повышает ценность жилья на рынке недвижимости.
Основные условия, которые должны соблюдаться для организации антресоли:
- Высота помещения от 4,4 м;
- Стационарная лестница, которая ведёт на площадку;
- Требования к помещениям на площадке и под ней (минимальная площадь, освещённость, вентиляция);
- Конструктивный расчёт, который доказывает безопасность антресоли.
Если вы хотите законно и безопасно организовать антресоль в своей квартире, напишите нам. Мы успешно разработали и согласовали больше 8000 проектов, в том числе с устройством антресоли. Консультация бесплатная:
Бесплатная консультация
по вашему проекту
После заявки
-
1
Свяжемся с вами
Перезвоним в течение 2 минут и расскажем о возможности согласования, сроках и стоимости проекта.
-
2
Составим план
Инженер предложит понятный план дальнейших действий. Вы избежите частых ошибок и штрафов.
Часто задаваемые вопросы
Общая высота помещения, в котором получится разместить антресоль — минимум 4,4 м, что подходит для организации вспомогательных помещений (кроме кухни) на площадке и под ней. Если планируется разместить комнату и кухню, общая высота должна составлять от 5 м.
Площадь квартиры увеличивается на площадь антресоли, если соблюдаются требования к её высоте и конструкции. Помещения на площадке и под ней должны быть минимум 2,1 м, а также возведена стационарная лестница для доступа на площадку.
На антресоли могут находиться любые помещения, если они отвечают нормативным требованиям: к освещённости, минимальной площади, высоте, вентиляции и прочим. Также нужно соблюдать правила «мокрых» зон: кухню и санузел нельзя размещать над комнатой, санузел не может находиться над кухней.











