- Что подразумевается под свободной планировкой
- Особенности свободной планировки
- Преимущества и недостатки свободной планировки
- Что можно согласовать, а что нельзя
- Как оформить перепланировку: пошагово
- Итоги: стоит ли брать квартиру со свободной планировкой
Застройщики и риелторы часто используют понятие «свободная планировка» в рекламе жилых комплексов. Речь идёт о квартирах без стен и перегородок, где будущим владельцам обещают возможность реализовать всё, что они захотят. Однако с юридической точки зрения такого понятия не существует. В статье рассказываем, в чём специфика подобных квартир и какие работы в них можно проводить.
Что подразумевается под свободной планировкой
Под термином «свободная планировка» имеется в виду квартира, которая представляет собой единое пространство без внутренних перегородок. Иногда есть несущие пилоны или колонны, может быть выделен санузел, но в остальном — никаких границ кроме внешних. Так же выглядят и планировки этих квартир, которые застройщики выкладывают на своих сайтах.
Но если заглянуть в официальные документы — технический паспорт БТИ или выписку ЕГРН, то мы обнаруживаем, что границы между помещениями всё-таки есть. На плане они обозначаются либо пунктиром, либо с помощью выделения функциональных зон. Будущему владельцу придётся учитывать их во время ремонта.
Некоторые застройщики сами обозначают контуры комнат на объекте с помощью трассировки блоками. В видео вы можете посмотреть пример того, как это сделано. А ещё узнать о том, как правильно делать перепланировку в новостройке и какие ошибки нельзя допускать:
Встречаются ситуации, когда даже в официальных документах не обозначены границы помещений. Однако прежде чем начинать ремонт, мы рекомендуем проверить строительные чертежи. На них помещения могут быть выделены, и в таком случае это нужно учесть при ремонте. Иначе есть риск, что перепланировка не пройдёт согласование или будет признана незаконной в будущем. Чертежи можно запросить в управляющей компании.
Пример обозначения помещений на строительном чертеже:
Особенности свободной планировки
Границы помещений в официальных документах имеют юридический вес, независимо от того, возведены они физически или нет. Это же касается распределения функциональных зон: в техпаспорте или выписке ЕГРН подробно прописано, где должны находиться жилые комнаты, вспомогательные помещения и «мокрые» зоны.
Любое отхождение от плана квартиры в выписке ЕГРН считается перепланировкой, а потому требует согласования — даже если вы намерены оставить часть пространства открытой и возвести не все перегородки, которые указаны на плане. Если вы не собираетесь менять границы и назначение помещений, а просто возведёте стены в соответствии с планом, то такие работы, как правило, не требуют согласований.
Хотите сделать ремонт в квартире со свободной планировкой? Напишите нам — мы подскажем, какие изменения будут законными в вашем случае. Консультация бесплатная:
Оставьте заявку на консультацию
После заявки
1. Мы свяжемся с вами и расскажем: возможно ли согласовать ваш проект, какие будут сроки и стоимость.
2. Инженер предложит понятный план дальнейших действий. Вы избежите частых ошибок и штрфов.
Позвоните нам: +7 (499) 455-13-92
Примеры наших проектов
Трёхкомнатная квартира располагается на 11 этаже 13-этажного дома 2023 года постройки. Общая площадь — 79,5 м². Застройщик обозначил границы помещений с помощью блоков, которые были выложены в один ряд (пунктирные линии на плане). Изначальная планировка: 3 комнаты, кухня, 2 санузла, коридор, гардеробная и кладовая.
Демонтировали блоки. Разместили кухню-столовую на площади комнаты, гардеробной, кладовой и части коридора. Организовали два совмещённых санузла. Бывшую кухню превратили в кабинет. На части одной из комнат расположили гардеробную и коридор.
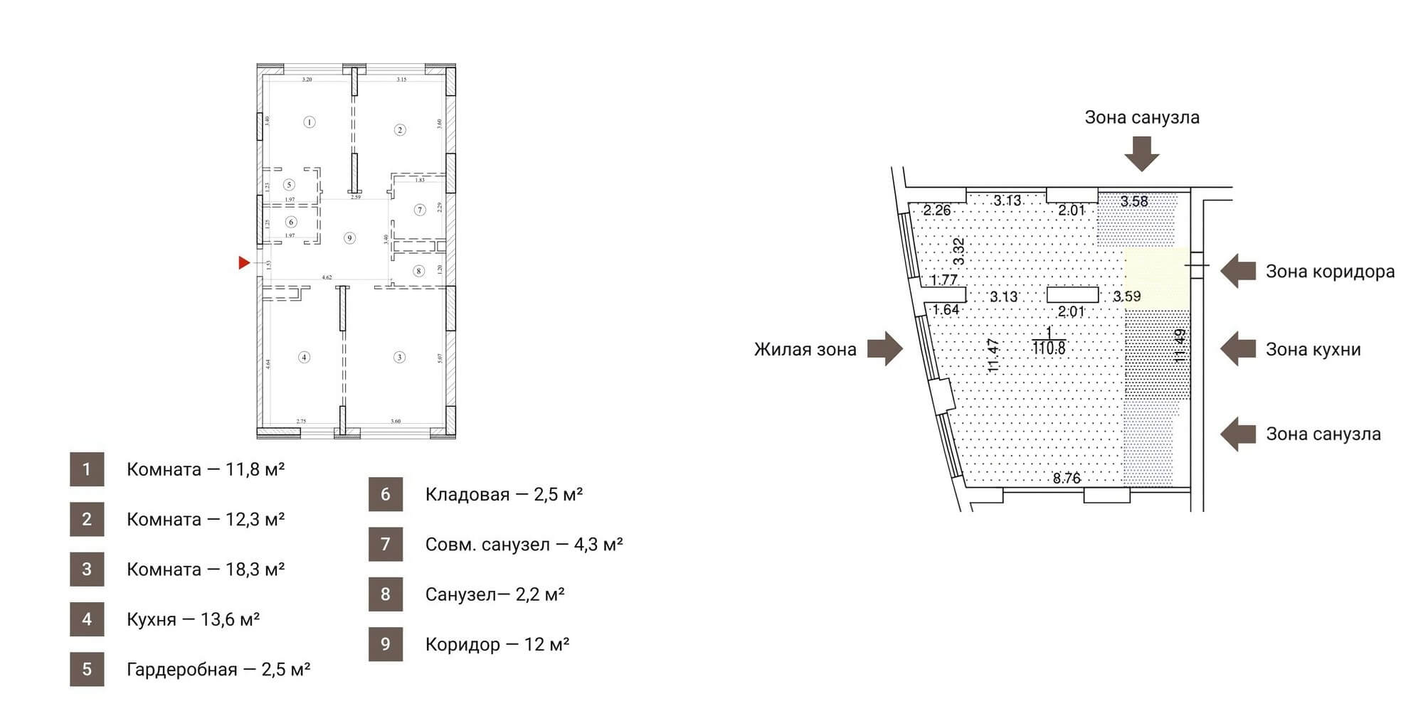
Однокомнатная квартира находится на 52 этаже 56-этажного дома 2014 года постройки. Общая площадь — 110,8 м². Застройщик не возвёл перегородок. Изначальная планировка: два санузла, кухня, коридор и жилая зона.
Разделили жилую зону на три комнаты. В итоге появились мастер-спальня, детская и гостиная. Рядом с гостиной оборудовали кухню-нишу. Выделили два совмещённых санузла — гостевой и личный. На части жилой зоны разместили гардеробную. Также организовали коридор с нишами для хранения вещей.
Преимущества и недостатки свободной планировки
Главный плюс — возможность сразу адаптировать квартиру под свои потребности без необходимости сносить или переносить старые стены. Но помните: вы действуете не с «чистого листа», а с учётом существующего плана и правил перепланировки. В любом случае вам придётся возводить перегородки самостоятельно, что означает дополнительные расходы на ремонт.
Что можно согласовать, а что нельзя
На объекты со свободной планировкой распространяются те же правила и ограничения, что и на обычные квартиры. Перечислим ключевые из них.
«Мокрые» зоны
Кухня не должна находиться над жилой комнатой соседей снизу и под санузлом соседей сверху. Что касается санузла, то его нельзя располагать над кухней или комнатой. При этом над санузлом могут быть любые помещения.
Лучше не затягивать с перепланировкой, поскольку ваши соседи этажом выше или ниже могут вас опередить и усложнить условия для будущих изменений. Например, расширить комнату на часть площади коридора или гардеробной. Тогда у вас уже не получится расширить санузел на ту же площадь.
Перед началом работ обязательно закажите поэтажные планы и посмотрите, как расположены помещения над и под вами. Это поможет определиться с рамками, в которых разрешено действовать.
Кухня-столовая
Допустимо объединить кухню с комнатой и организовать кухню-столовую. Но даже после объединения сохраняется чёткое разделение на кухонную («мокрую») и обеденную зоны. Плита, мойка и посудомоечная машина должны оставаться в кухонной зоне, переносить их в обеденную запрещено. Этот запрет не касается холодильника — его можно свободно перемещать.
Минимальная площадь помещений
При перепланировке нужно соблюдать требования к минимальным площадям помещений. Для удобства собрали их в одну таблицу.
|
Помещение | Минимальная площадь (м²) |
|---|---|
|
Кухня |
8 |
|
Кухонная зона кухни-столовой |
6 |
|
Кухня-ниша |
5 (ширина не менее 1,9 м) |
|
Комната в 1-комнатной квартире |
14 |
| Комнаты в квартире с 2 комнатами и более | Одна из комнат 16, другие минимум 8 (ширина не менее 2,25 м) |
Лоджия
Объединять лоджию с жилой комнатой запрещено. Лоджия является холодным помещением, а комната — тёплым. Демонтаж простенка и подоконного блока нарушает тепловой контур дома. По этой же причине нельзя двигать стену между этими двумя помещениями в ту или иную сторону.
Есть компромиссное решение: установить вместо демонтируемых конструкций дверь из двухкамерного стеклопакета. В таком случае тепловой контур будет сохранён.
Как оформить перепланировку: пошагово
- Подготовить пакет исходных документов: технический паспорт БТИ, выписку ЕГРН, паспорта собственников жилья, поэтажные планы квартир сверху и снизу. Также закажите поэтажный план своей квартиры, если он у вас не на руках.
- Разработать проектную документацию. Этой процедурой занимается компания, которая состоит в СРО. Например, мы — компания PEREPLAN. В документах будут отражены детальные планы квартиры до и после перепланировки, технические расчёты, схемы инженерных систем. Также компания выдаст вам техническое заключение о возможности перепланировки.
- Полученные документы отправить на согласование в Мосжилинспекцию (МЖИ). Подача происходит в электронном формате через портал mos.ru.
- Приступить к ремонтным работам после получения разрешения. Важно, чтобы ремонт проводился в полном соответствии с согласованным проектом. Составьте акты с текстовым описанием скрытых работ (например, если прокладывались коммуникации под покрытием пола).
- Заказать приёмку выполненных работ. После завершения ремонта вы вновь подаёте заявление в МЖИ и ожидаете визита инспектора, который проверит итоговый результат на соответствие проекту. Если всё в порядке, он выдаст акт о завершённой перепланировке.
- Оформить документы с обновлённой информацией. Обратитесь с выданным актом в БТИ для получения нового техпаспорта. Кроме того, изменённую планировку требуется зарегистрировать в Росреестре, чтобы получить обновлённую выписку ЕГРН.
Итоги: стоит ли брать квартиру со свободной планировкой
Свободная планировка в новостройке — распространённое решение на рынке недвижимости. Если вы собираетесь стать обладателем такого жилья, помните: в юридической практике понятия «свободная планировка» не существует.
Не забывайте о ключевых правилах расположения «мокрых» зон, присоединения лоджии к комнате и организации кухни-столовой. Что насчёт жилой зоны, здесь вы вольны воплощать практически любые задумки: это могут быть комнаты с необычной конфигурацией или единое пространство. Главное, соблюдать минимальные площади помещений (см. таблицу выше) и помнить, что это тоже перепланировка, которую нужно делать по нормам и согласовывать.
Если вы хотите сделать изменения в квартире со свободной планировкой, напишите нам — ответим на все вопросы и бесплатно проконсультируем:
Оставьте заявку на консультацию
После заявки
1. Мы свяжемся с вами и расскажем: возможно ли согласовать ваш проект, какие будут сроки и стоимость.
2. Инженер предложит понятный план дальнейших действий. Вы избежите частых ошибок и штрфов.
Позвоните нам: +7 (499) 455-13-92
Часто задаваемые вопросы о свободной планировке
Под свободной планировкой подразумевается квартира в новостройке, которая продаётся без внутренних перегородок. В отдельных случаях застройщик может обозначить границы помещений с помощью трассировки блоками.
Квартира без перегородок в действительности разделена на помещения. Их границы указаны в техническом паспорте или выписке ЕГРН. Это важно учитывать, если вы планируете сделать перепланировку.
Для согласования перепланировки необходимо изготовить проектную документацию и техническое заключение, а затем отправить их в Мосжилинспекцию через портал mos.ru вместе с другими документами.








