- Зачем согласовывать перепланировку
- Что будет, если не согласовать перепланировку
- Перепланировка, переустройство и ремонт: в чём разница
- Что можно согласовать, а что нельзя
- Особенности перепланировки в новостройках
- Этапы согласования перепланировки
- Сроки и расходы
- Как подать заявление в Мосжилинспекцию
- Частые ошибки при перепланировке
- Итог: что нужно знать о перепланировке в новостройке
Многие покупатели квартир в новостройках сразу же задумываются о перепланировке. Будущих владельцев может не устраивать исходная конфигурация помещений: маленькая гостиная, раздельный санузел вместо совмещённого, отсутствие гардеробной и т. д. В этом есть логика: проще внести необходимые изменения на начальном этапе, чем затевать их потом, после въезда и обустройства.
Изменение планировки нужно обязательно согласовывать. Иначе есть риск нарваться на штраф, столкнуться с необходимостью переделывать ремонт или вовсе лишиться квартиры. К тому же далеко не все работы можно проводить. В статье подробно расскажем об этапах и деталях согласования перепланировки, а также разберём ключевые ошибки, которые нельзя допускать.
Зачем согласовывать перепланировку
Любые действия, которые связаны с изменением первоначального плана квартиры, требуют одобрения Мосжилинспекции (МЖИ). В первую очередь это необходимо по соображениям безопасности. В противном случае вы можете не только ухудшить жилищные условия себе и своим соседям, но и нарушить опорную конструкцию всего дома.
Также согласование нужно, чтобы получить обновлённые документы с актуальным планом. При продаже жилья расположение и размер помещений должны совпадать с техническим паспортом БТИ и выпиской ЕГРН. Иначе покупатель или риелтор могут попросить скидку до 20% за неузаконенную перепланировку.
Отдельный случай — ипотечная квартира. Банк может расценить самовольную перепланировку как нарушение договора ипотеки. Кредитная организация должна быть уверена, что после проведённых работ рыночная стоимость квартиры не изменится. Выход есть: предоставить банку разработанный проект изменений и получить официальное согласие.
Что будет, если не согласовать перепланировку
За несогласованные изменения полагается штраф от 2000 до 2500 рублей согласно ст. 7.21 КоАП РФ. Далее вас заставят либо узаконить перепланировку, либо сделать ремонт заново и вернуть квартиру к исходным параметрам.
Вы можете отказаться выполнять предписание, но тогда дело перейдёт в суд и уже он обяжет вас восстановить всё согласно первичному плану. В худшем случае квартира будет продана на торгах, а собственник получит на руки сумму от продажи недвижимости.
С самостоятельной продажей квартиры с неузаконенными изменениями тоже возникнут проблемы. Риелторы и покупатели неохотно соглашаются на такие предложения, поскольку мало кто хочет взваливать на себя обязанности по узакониванию перепланировки предыдущего владельца. Вероятно, продать всё-таки получится, но по цене существенно ниже рыночной.
Этих неприятностей можно избежать, если узаконить внесённые изменения. А лучше — согласовать заранее. Компания PEREPLAN поможет вам с согласованием предстоящей перепланировки или с легализацией уже сделанной. Напишите нам — мы бесплатно проконсультируем вас, как действовать в вашей ситуации:
Оставьте заявку на консультацию
После заявки
1. Мы свяжемся с вами и расскажем: возможно ли согласовать ваш проект, какие будут сроки и стоимость.
2. Инженер предложит понятный план дальнейших действий. Вы избежите частых ошибок и штрфов.
Позвоните нам: +7 (499) 455-13-92
Перепланировка, переустройство и ремонт: в чём разница
Перед стартом работ важно определиться с масштабом будущих изменений. Речь здесь не только о том, чтобы правильно рассчитать материальные затраты, но и о том, чтобы понять юридический статус манипуляций с недвижимостью. Существует три категории работ:
Косметический ремонт — работы, при которых не меняется план квартиры из выписки ЕГРН. Такие мероприятия не требуют согласования. Например, к ним относятся:
- Поклейка обоев;
- Замена верхнего покрытия пола;
- Покраска или отделка стен (без увеличения их толщины);
- Замена дверей;
- Перенос розеток;
- Замена окон без изменения облика фасада дома.
Переустройство — изменения, которые не касаются расположения и размеров помещений, но связаны с перемещением или установкой инженерных и сантехнических приборов. В таком случае меняется местонахождение оборудования, которое зафиксировано в выписке ЕГРН, поэтому такие действия нужно согласовывать. Даже если оборудование переносится в существующих границах помещения, без их изменения. Сюда входят:
- Перенос/установка раковины или унитаза;
- Замена ванны на душевую;
- Перенос плиты.
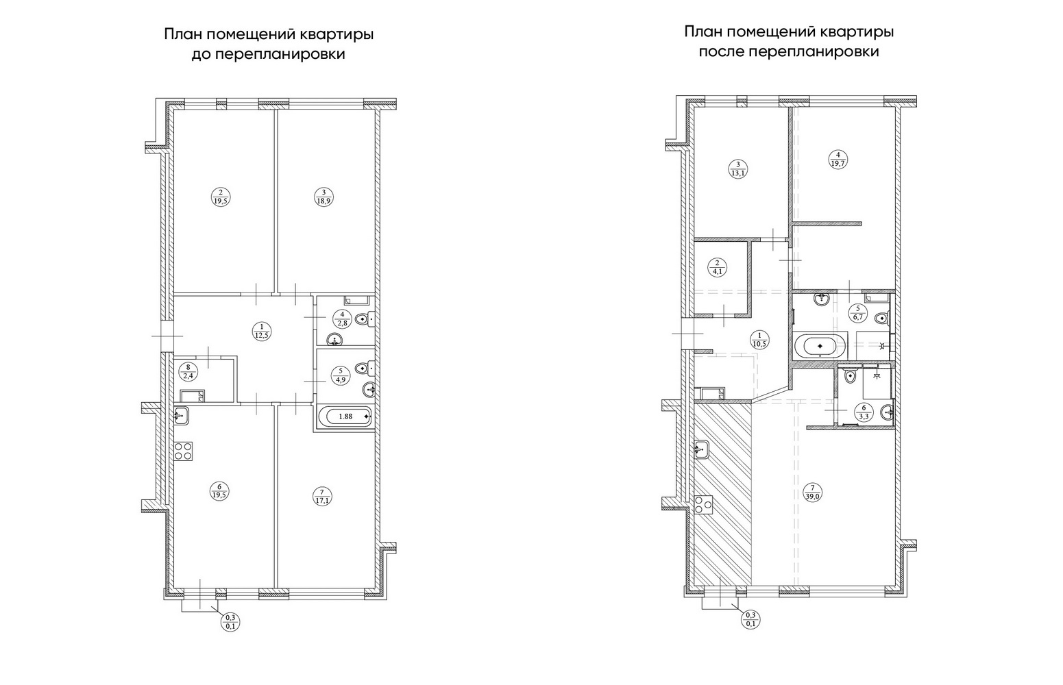
Перепланировка — изменение планировки квартиры, после которого она перестаёт соответствовать изначальному плану из выписки ЕГРН. Меняются границы и площади комнат, добавляются новые помещения или, наоборот, исчезают прежние. Всё это подлежит обязательному согласованию. Вот разновидности работ на примере конкретной квартиры (они показаны на плане):
- Перенос/демонтаж перегородок, создание новых проёмов;
- Организация кухни-столовой (помещение 7);
- Устройство совмещённого санузла (помещение 5);
- Организация гардеробной (помещение 2);
- Устройство мастер-спальни (помещение 4).
В ряде случаев доступен облегчённый вариант согласования — по эскизу. Например, когда вы собираетесь разделить две комнаты или, наоборот, демонтировать перегородку между ними, организовать встроенный шкаф. В свою очередь, смещение «мокрых» зон (кухня, санузел) и операции с несущими стенами согласовываются по полноценному проекту.
В видео подробно рассказываем, какие виды работ нужно согласовывать, а какие — нет:
Что можно согласовать, а что нельзя
Существует перечень работ, которые не получится согласовать при любом раскладе. Они могут негативно повлиять на условия проживания в доме, а то и вовсе поставить под угрозу целостность самого здания. Узаконить такие изменения невозможно, поэтому лучше не допускать их изначально.
Что категорически нельзя делать
- Сносить несущие конструкции (стены, колонны, пилоны);
- Объединять тёплые и холодные помещения, например, жилую комнату и лоджию;
- Переносить радиаторы на лоджию или балкон;
- Демонтировать общедомовой вентиляционный канал;
- Расширять или организовывать «мокрые» зоны над комнатами соседей снизу;
- Располагать кухню под санузлом соседей сверху или санузел над кухней соседей снизу.
Что можно делать
- Возводить между комнатами перегородки из облегчённых материалов (пеноблоки, газоблоки, гипсокартон);
- Сносить ненесущие конструкции;
- Организовывать проёмы в несущих стенах. Для этого нужны конструктивные расчёты, которые делают в проектной организации. Иногда расчёт нагрузок не позволяет осуществить задуманное. Кроме того, такой проём необходимо усилить металлоконструкциями.
Особенности перепланировки в новостройках
С перепланировкой в новостройках связано несколько моментов, о которых важно помнить перед тем, как приступать к работам.
Технический паспорт БТИ
Лучше не начинать перепланировку без технического паспорта БТИ. В этом документе содержатся все необходимые сведения об объекте недвижимости, в том числе зафиксированы изначальные параметры помещений. Иными словами, это отправная точка, с которой Мосжилинспекция будет сверять все последующие изменения.
Часто застройщики не передают информацию в БТИ, поэтому вам нужно обратиться в эту организацию самостоятельно. К вам выедет специалист, проведёт замеры и на их основе подготовит техпаспорт. Вносить какие-либо изменения до этого момента нельзя, иначе они будут признаны самовольными.
Свободная планировка
Застройщики нередко продают квартиры без внутренних перегородок. Такой формат называется «свободной планировкой» и преподносится как преимущество. Покупатель рискует сделать ошибочный вывод: раз перегородок нет, значит, можно организовать пространство как угодно и ни с кем это не согласовывать.
Юридически такого понятия как «свободная планировка» не существует. Да, на объекте могут отсутствовать стены, но они обозначены в официальных документах — техпаспорте и выписке ЕГРН. Опять же, если застройщик не передал данные в БТИ, то следует запросить в управляющей компании строительные чертежи. Там границы и расположение помещений точно будут отмечены.
Перепланировкой будет считаться любое действие, которое меняет конфигурацию помещений в документах, даже если реальных перегородок нет. Следовательно, такие работы подлежат согласованию и подчиняются правилам, которые описаны выше.
Перепланировка до регистрации права собственности
Возможна ситуация, когда вы получаете ключи от квартиры раньше, чем регистрируете право собственности. Велик соблазн приступить к перепланировке сразу же, однако на практике так делать не стоит.
Только собственнику жилья дозволено начинать какие-либо процессы на своих квадратных метрах. Согласование без выписки ЕГРН невозможно. Именно этот документ подтверждает право собственности. В данной ситуации лучше подождать, чем столкнуться с проблемами позднее.
Этапы согласования перепланировки
- Подготовьте необходимые документы: паспорта собственников жилья, техпаспорт БТИ и выписку ЕГРН. Также вам понадобятся поэтажные планы трёх квартир: вашей, выше и ниже этажом.
- Закажите проектную документацию и техническое заключение о допустимости перепланировки в компании с членством в СРО.
- Отправьте заявление в Мосжилинспекцию вместе с подготовленными документами с помощью портала mos.ru.
- Если планируемые действия затрагивают общедомовое имущество (фасад, общедомовые коридоры, технический короб, стояки отопления и водоснабжения), то необходимо провести общее собрание собственников и оформить по его итогам протокол, который является разрешением на подобные операции. Согласовывать такие работы с УК и ТСЖ не нужно.
- Начинайте проведение ремонта в строгом соответствии с проектом. Отдельно заполняйте акт с фиксацией скрытых работ. Если вы планируете организовать антресоль или сделать проём в несущей стене, то вам дополнительно понадобится журнал производства работ.
- По окончании ремонта повторно обратитесь в МЖИ. К вам приедет инспектор, который осуществит приёмку выполненных работ. Если они соответствуют проекту, то вам выдадут акт о завершённой перепланировке.
- Подайте этот акт в БТИ для оформления нового техпаспорта. Также зарегистрируйте обновлённую планировку в Росреестре для получения актуальной выписки ЕГРН.
Мы можем взять на себя все обязанности по согласованию перепланировки. Соберём пакет документов, разработаем проект и согласуем его с Мосжилинспекцией. Проконсультируйтесь с нами по всем вопросам заранее. Консультация бесплатная:
Оставьте заявку на консультацию
После заявки
1. Мы свяжемся с вами и расскажем: возможно ли согласовать ваш проект, какие будут сроки и стоимость.
2. Инженер предложит понятный план дальнейших действий. Вы избежите частых ошибок и штрфов.
Позвоните нам: +7 (499) 455-13-92
Стоимость и сроки согласования
Стоимость и длительность согласования зависят от сложности ремонта. Компания PEREPLAN предлагает три варианта услуг по оформлению перепланировки. Это позволит сократить сроки и избежать возможных ошибок.
- Проект перепланировки — от [price_pack_1] рублей. Подойдёт для тех, кто хочет пройти процедуру согласования самостоятельно.
- Проект перепланировки и согласование — от [price_pack_2] рублей. Разрабатываем проект и согласовываем его в Мосжилинспекции.
- Согласование «под ключ» — от [price_pack_4] рублей. Полностью берём под свой контроль процесс согласования. Собираем документы, обращаемся во все инстанции. Уведомляем о каждом проделанном шаге.
Все этапы оформления перепланировки можно разделить на три основных блока:
- Перед ремонтом. Подготовка документации и получение разрешения от Мосжилинспекции на начало работ. Занимает от 2 до 2,5 месяцев.
- Ремонт. Продолжительность ремонтных работ зависит только от вас. Но помните, что разрешение действует 18 месяцев. Нужно уложиться в этот срок.
- После ремонта. По окончании работ нужно вызвать инспектора МЖИ, получить акт о завершённой перепланировке, обновить техпаспорт БТИ и выписку ЕГРН. Это займёт ещё около 2 месяцев.
Как подать заявление в Мосжилинспекцию
Для жителей Москвы действует упрощённый механизм подачи заявления на перепланировку с помощью портала mos.ru. Сделать это можно в несколько шагов.
1. Откройте главную страницу портала mos.ru и зайдите в раздел «Услуги».
2. Выберите категорию «Жильё, недвижимость, земля». Далее перейдите по указанным на картинке подкатегориям.
3. В окне «Согласование переустройства, перепланировки помещения в многоквартирном доме» нажмите «Получить услугу».
4. В открывшейся форме выберите первый пункт.
5. В сведениях о статусе лица отметьте себя в качестве заявителя.
6. Личные данные заполняются автоматически.
7. Паспортные данные заполняются автоматически.
8. Введите адрес дома, где планируется перепланировка, и отдельно номер квартиры.
9. Выберите подходящий вариант имущественных прав на объект недвижимости.
10. Нажмите «Да», если права на недвижимость зарегистрированы в ЕГРН.
11. Введите кадастровый номер объекта недвижимости.
12. Выберите первый пункт (если в квартире один собственник) или второй (если в квартире два и более собственников).
13. Выберите подходящий пункт в зависимости от того, изменится или нет конфигурация смежного помещения.
14. Прикрепите файл PDF или ZIP-архив с проектом и техническим заключением с электронной цифровой подписью.
15. Отметьте, затрагивается ли при проведении работ общее имущество дома.
16. Прикрепите следующие документы: выписка ЕГРН, план БТИ с экспликацией или технический паспорт БТИ, согласие других собственников (если они есть).
Заявление принято. Ожидайте рассмотрения. Если всё в порядке, в ваш личный кабинет на портале придёт сообщение о согласовании перепланировки.
Частые ошибки при перепланировке
- Начинать ремонт без согласования. Разумеется, никто не запрещает вам узаконить перепланировку сразу после завершения. Но велик риск допустить ошибки, устранение которых принесёт дополнительные хлопоты и сведёт на нет часть дорогостоящих работ.
- Выполнять работы, которые невозможно узаконить. Если вы всё-таки готовы рискнуть и начать ремонт самостоятельно, то следует детально изучить правила. Например, категорически запрещено размещать «мокрые» зоны над жилыми помещениями соседей ниже или объединять лоджию с комнатой. Подобные изменения вам никогда не одобрят.
- Отступать от проекта при проведении работ. Если проект уже согласован, то важно чётко придерживаться параметров, которые в нём указаны. Несоответствия могут вскрыться при визите инспектора МЖИ. Впрочем, если расхождения несущественны (например, вы решили немного сдвинуть перегородку между комнатами), то их реально досогласовать с помощью эскиза.
Итог: что нужно знать о перепланировке в новостройке
Непросто найти новую квартиру, которая полностью соответствует вашим ожиданиям. Перепланировка — это отличный способ приспособить жильё под свои потребности. После получения ключей хочется сразу же приступить к работам, однако лучше набраться терпения. Начинать ремонт можно лишь после того, как у вас на руках будут необходимые документы — технический паспорт БТИ и выписка ЕГРН. Последняя подтверждает право собственности на объект недвижимости.
Перед началом работ проверьте, не нарушают ли задуманные вами изменения базовые правила перепланировки. Лучше подстраховаться заранее, чем выполнить дорогостоящий ремонт, который невозможно согласовать. Также нужно учитывать индивидуальные особенности вашей квартиры.
Чтобы не запутаться и не допустить ошибок, обратитесь в компанию с большим опытом в проектировании и согласовании. Например, к нам — компании PEREPLAN. Мы не только ответим на все вопросы, но и возьмём на себя обязанности по согласованию от первого до последнего этапа:
Оставьте заявку на консультацию
После заявки
1. Мы свяжемся с вами и расскажем: возможно ли согласовать ваш проект, какие будут сроки и стоимость.
2. Инженер предложит понятный план дальнейших действий. Вы избежите частых ошибок и штрфов.
Позвоните нам: +7 (499) 455-13-92
Часто задаваемые вопросы о согласовании перепланировки в новостройке
Чтобы легализовать выполненный ремонт, обратитесь в БТИ за первоначальным планом квартиры. Далее — в компанию с членством в СРО. Она подготовит проект перепланировки и выдаст техническое заключение о проведённых работах. Эти документы направляются в Мосжилинспекцию, которая в конечном счёте утвердит ремонт. Если всё выполнено в соответствии с нормами, то проблем быть не должно.
Если жильё в ипотеке, то необходимо получить согласие банка до начала работ. Для этого предоставьте кредитной организации разработанный проект изменений. Банк должен быть уверен, что квартира сохранит ликвидность и не потеряет в цене.
Стоимость согласования перепланировки «под ключ» в компании PEREPLAN – от [price_pack_4] рублей. Разработку проекта можно заказать отдельно — от [price_pack_1] рублей. Также доступна комплексная услуга «Проект перепланировки и согласование» — от [price_pack_2] рублей. Процесс оформления без учёта времени на ремонт занимает в среднем 4–5 месяцев.
Согласовать перепланировку может только собственник жилья. Начинать работы возможно при наличии выписки ЕГРН, которая является подтверждением прав собственности. До вступления в эти права проводить какие-либо изменения в квартире нежелательно.
Согласование по эскизу — это упрощённая процедура, которая позволяет оформить изменения в более короткие сроки. В отличие от проекта, который нужно заказывать в специализированной организации, эскиз можно сделать самостоятельно. Он подходит для несложных работ: установка или демонтаж перегородки, перенос сантехники, устройство гардеробной.
Если Мосжилинспекция не дала разрешение на проведение работ, то следует учесть её замечания, скорректировать проект и отправить документы повторно. Если все недочёты устранены, то МЖИ одобрит проект.





















