- Роль БТИ в согласовании перепланировки
- Где получить технический паспорт квартиры и поэтажный план
- Красные линии в плане БТИ
- Ошибки БТИ
- Проблемы, с которыми сталкиваются клиенты при самостоятельном обращении в БТИ
- Как АПМ-1 поможет в решении вопросов с БТИ
Увеличить размер коридора, сделать новый дверной проем, снести встроенные шкафы или объединить кухню с лоджией – все это является перепланировкой квартиры, которую необходимо согласовывать в Мосжилинспекции. Но перед этим есть еще один важный этап – обращение в БТИ за получением техпаспорта вашей квартиры.
В этой статье расскажем, как действовать, если вам необходим план квартиры. Что делать, если в БТИ допустили ошибку? А также почему перед обращением обязательно нужно проконсультироваться с компанией по согласованию перепланировок.
Роль БТИ в согласовании перепланировки
Выдачей разрешения на перепланировку и ее дальнейшим узакониванием занимается Мосжилинспекция, а учет всех изменений в квартире, подготовку техпаспорта и выдачу итогового плана квартиры ведет БТИ – бюро технической инвентаризации.
БТИ ведет реестр данных о фактическом состоянии квартир и других объектов недвижимости. Главный документ, необходимый для перепланировки, это поэтажный план БТИ, где отражены важные элементы квартиры:
- несущие стены и перегородки;
- балконы и лоджии;
- двери и окна;
- газовая плита;
- встроенные шкафы, кладовые и гардеробные;
- сантехника, в том числе унитаз.

Пример поэтажного плана БТИ в новостройке, где еще нет сантехники.
Функции БТИ:
- Выдавать документы первичной инвентаризации (это может быть архивная копия или технический паспорт БТИ).
- Проводить обмеры квартиры после согласования перепланировки и готовить техпаспорта с новой планировкой квартиры на основании подписанного акта о завершенном переустройстве.
Бюро технической инвентаризации не принимает никаких решений, касаемо вашей перепланировки, оно лишь констатируют факт – были ли изменения в квартире и, если да, то какие.
Где получить технический паспорт квартиры и поэтажный план
План БТИ вы можете заказать самостоятельно, либо делегировать это проектной компании. Если согласованием перепланировки будет заниматься она, получить план в Москве можно в:
- МосгорБТИ, преимущество которого в том, что он хранит архивные данные, но вместе с этим услуги обходятся долго, дорого, а их получение имеет много нюансов;
- МосОблБТИ;
- федеральном БТИ – РосТехИнвентаризация. Мы работаем именно с ним, так как перечень объектов, по которым готовится документация, существенно шире, ведомство работает по всей России, а юридическая сила у документов такая же, как в МосгорБТИ или МосОблБТИ.
Для работы по согласованию перепланировки в Мосжилинспекции потребуется технический паспорт, полученный в любом из перечисленных БТИ.
Обязательно нужно запросить планы БТИ ваших соседей сверху и снизу, если ваша квартира не в новостройке. Это необходимо для Мосжилинспекции. Особенно это касается старых кирпичных домов, так как там чаще всего может оказаться, что соседи сверху и снизу уже сделали перепланировку. Практика показывает, что у вас, у соседей сверху и снизу могут быть три разные планировки, и это нужно учитывать, чтобы ничего не испортить ни вам, ни соседям.
Мы не раз сталкивались с ситуацией, когда клиент хотел расширить санузел за счет коридора. Но в итоге ванная комната оказывалась в жилой зоне соседей, так как они уже сделали и узаконили перепланировку, расширив жилую зону на коридор.
Проверка планировки снизу или сверху для клиентов, проживающих в домах с 2010 года, – дополнительная услуга, которая стоит 6 000 рублей, но помогает четко понимать ситуацию соседей и, значит, действовать правильно. По домам 50-60-х годов получение планов БТИ соседей – обязательная процедура.
Если у вас квартира в новостройке, плана БТИ может не быть. В таком случае необходимо ставить квартиру на первичный учет самостоятельно. Подробнее об этом читайте в статье «Как получить план БТИ для квартиры в новостройке».
Госпошлина за получение первичного техпаспорта составляет от 10 000 до 15 000 рублей на квартиры до 100 кв. м.
Красные линии в плане БТИ
Красными линиями в плане БТИ обозначают незаконные перепланировки и переустройства. Они появляются после того, как вы вызовите техника БТИ для обмеров вашей квартиры, и он найдет там несогласованный снос стен, перенесенный в другое место унитаз, передвинутую газовую плиту, новые проемы.
Иногда красные линии в плане могут появиться по ошибке, например, из-за неточных замеров техника. Именно поэтому, чтобы избежать лишних проблем, перед вызовом техника на квартиру мы настоятельно советуем обратиться за бесплатной экспертной консультацией в АПМ-1.
Здравствуйте! 👋 Вы можете задать мне любой интересующий вопрос в WhatsApp. Получите консультацию специалиста или отправьте нам на предварительную оценку необходимые документы.Задайте вопрос эксперту в WhatsApp
Частые вопросы нашим экспертам
Чтобы задать вопрос в WhatsApp отсканируйте QR-код с телефона.Диалог с экспертом
откроется в приложении.
Вызов техника БТИ:
- Представитель БТИ выходит по вашей заявке на квартиру для обмеров, чтобы сравнить имеющийся в базе план с реальной ситуацией;
- Если у БТИ есть разрешающие документы, что планировка согласована Мосжилинспекцией, тогда новый план вырисовывается сразу в черных «узаконенных» линиях;
- Если техник понимает, что перепланировка не узаконена, нет подтверждающих документов — на плане появляются красные линии, ими отмечаются внесенные вами изменения;
- После того, как план с изменениями согласовывается, собственник делает ремонт и снова вызывает специалиста Мосжилинспекции. Ему нужно проверить, что перепланировка выполнена согласно проекту. Если все хорошо, выдается акт о завершенном переустройстве;
- Акт подписывается в четырех экземплярах, один из которых уходит в БТИ. После этого техник БТИ еще раз выходит на объект, проводит повторные обмеры, сверяет их с проектом перепланировки. Если все верно, вы получаете новый план БТИ – в черных линиях.
Ошибки БТИ
Частая проблема, с которой сталкиваются собственники при самостоятельном обращении в БТИ, это ошибки, которые возникают при отрисовке планов.
По нашему опыту, каждый второй случай имеет ошибки, допущенные БТИ: например, не в том месте указаны окна в плане либо были неверные обмеры.
Когда эта квартира была взята в работу, красные линии в плане были только в санузле. когда мы вышли на объект, заметили много ошибок, допущенных БТИ. Например, по окнам и лоджии. Кроме того, раковина была отмечена не там, где в действительности находится в квартире.
Попытка доказать ошибку техника БТИ может обернуться для собственника новой проблемой. Да, БТИ исправят найденное несоответствие в плане, но, вполне вероятно, найдут другое. Как такое происходит?
Как правило, собственник думает, что его квартира находится в первоначальном варианте, ведь он сам никаких изменений в нее не вносил.
По данным БТИ может оказаться, что ранее в квартире был встроенный шкаф или плиту передвинули в другое место.
Для собственника этот шкаф или передвинутая плита совершенно не важны. Он вызовет техника БТИ, который снова сверит планы и сделает обмеры.
Техник подтвердит: «Да, в окнах ошиблись, только тут у вас сделана перепланировка». Под ней как раз будет подразумеваться снос шкафа либо перенос плиты, даже если она была передвинута буквально на 30 см. В итоге на плане появятся красные линии.
Доказать, что собственник ничего не делал в квартире, сложно. Вы не сможете приступить к своей перепланировке, пока не узаконите демонтаж шкафа и перенос плиты.
Минимальный срок получения первичного плана БТИ — от трех недель с момента написания заявления. Если выявляются ошибки, то этот срок увеличивается минимум на месяц: вам нужно будет устранить проблемы, затем снова написать заявление, вызвать техника БТИ для обмеров и снова оплатить госпошлину (от 10 000 рублей).

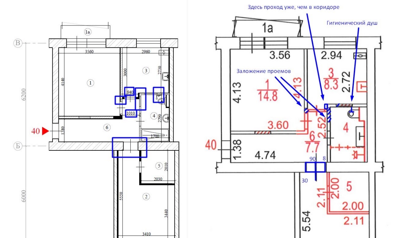
Планы квартиры в доме №8 по ул. Бориса Галушкина: слева направо – изначальный и два с ошибками. По факту кухня была расширена на зону жилой комнаты (на плане она под номером 2), и помещения №4 вообще не было по бумагам. Мы заметили это, и техника БТИ вызвали на объект тогда, когда кухня и комната были разграничены стеной. Такую перепланировку приняли, и мы получили акт о завершенном переустройстве.
На первом плане дверь и окно на лоджию перепутаны местами. После получения красных линий они исправлялись. Затем красные линии редактировались – в плане указали инсталляцию за унитазом и убрали лишние встроенные шкафы, которые ошибочно БТИ нарисовали у себя.
Смотрите видео – как появляются ошибки БТИ и что с ними делать: рассказываем на примере конкретной квартиры.
Проблемы, с которыми сталкиваются клиенты при самостоятельном обращении в БТИ
Первая и самая распространенная проблема – это получение красных линий в плане БТИ, появление которых вы можете даже не предполагать. Они возникают по двум причинам:
- в базах хранится старый план квартиры, но в помещениях уже происходили изменения жильцами до вас;
- ошибка обмеров техника БТИ.
Помните, что для БТИ важно все! Не только существенные изменения в перепланировки, но и те, которые вы посчитаете минимальными:
- перенос плиты;
- модификация унитаза – с бачком или инсталляцией;
- наличие гигиенического душа;
- декоративные ниши или встроенные полки, шкафы;
- установка нестандартных дверей – например, распашных на кухне;
- подиумы в квартире;
- проем с дверным полотном или без него.
Все это должно быть в квартире, если отмечено в плане БТИ, или отсутствовать, если в плане этого нет.
Вторая проблема связана с квартирами в новостройках, когда в базах БТИ изначально нет техпаспорта. Его вам нужно будет получать самостоятельно. Как это сделать, читайте в статье — получение плана БТИ в новостройке.

Пример плана квартиры, в котором получены красные линии, требующие дополнительного исправления – есть отличия плана квартиры от реальной обстановки помечены на картинке. Техник БТИ вышел на первичный учет, обмерил помещение, затем на объект вышли мы и заметили несколько ошибок. После этого БТИ подготовили верный план квартиры.
Как АПМ-1 поможет в решении вопросов с БТИ
Если вы задумали перепланировку, в первую очередь лучше обратиться к нам за бесплатной консультацией. Вы избежите ряд проблем, сократите время и нервы на согласование, сэкономите деньги.
- мы изучим документы, сравним план БТИ с реальной обстановкой в квартире, расскажем, какую перепланировку сможете узаконить, а какую нет;
- если найдем проблемы или несоответствия, заранее скажем, что нужно будет исправить в квартире, чтобы у техника БТИ не возникло вопросов к вам;
- поможем избежать красных линий в техпаспорте и сразу приступить к запланированной перепланировке;
- если ремонт уже выполнен, и появление красных линий в плане не избежать, мы посоветуем, как согласовать перепланировку с минимальными финансовыми вложениями и вашим участием. Объясним, какие красные линии в техпаспорте можно будет узаконить, а какие нет, если ремонт выполнен с нарушениями;
- если вы примете решение сотрудничать с нами, то перед оформлением договора выйдем на объект и сделаем обмеры, после чего станет окончательно понятен дальнейший план.
После консультации вы получите четкий порядок действий, начнете работу по получению техпаспорта БТИ сами либо доверяете этот вопрос нам.
Максимум, что вы можете сделать совершенно спокойно, это получить план БТИ, но вызов техника должен быть спланированным и обдуманным.
Для примера возьмем ситуацию с расширением санузла на зону кухни. Такая перепланировка запрещена. Вы можете быть не в курсе этого, оплатите госпошлину и вызовите техника БТИ, который обязательно отметит перенос стены в техпаспорте.
Мы же предупредим, что перед вызовом БТИ вам нужно сначала перенести стену обратно, затем уже оплачивать госпошлину и приглашать техника, чтобы красные линии были правильными – те, которые можно будет в дальнейшем преобразовать в черные и, значит, узаконить перепланировку.
Или другая ситуация – перенос кухни в жилую зону. Мы обратим ваше внимание на то, что кухня с таким расположением никогда не пройдет согласование, ее нужно переносить – мы подскажем, куда. Если вы не готовы сделать это, тогда лучше вообще не вызывать БТИ, чтобы в итоге по суду не восстанаваливать в первоночальное состояние, так как узаконить ничего не удастся.
У АПМ-1 большой опыт в работе БТИ, мы знаем все возможные «подводные камни». Без опытасложно понять, в чем ошиблось БТИ. Даже если вы понимаете, где допущен недочет, доказательство своей правоты отнимает массу времени.
Также:
- Поможем не только решить проблемы, но и предупредить их появление. Кроме того, вы изначально будете точно знать, можно ли сделать такой ремонт в квартире, каким его видите вы: допустимы ли перенос кухни, объединение комнат, расширение санузла за счет коридора, демонтаж подоконника.
- «на берегу» расскажем об основных нарушениях при перепланировке и предложим компромисс. Договор с нами заключается только после того, как планировочное решение будет обговорено, и мы будем уверены в положительном результате.
Если мы беремся за согласование или узаконивание перепланировки, значит, точно знаем, что добьемся этого!
Оставьте заявку на бесплатную консультацию
Часто задаваемые вопросы о перепланировке в БТИ
Перепланировка квартиры оформляется в Мосжилинспекции, БТИ этим не занимается – оно только выдает техпаспорт на квартиру. Стоимость оформления документов в БТИ зависит от квадратуры вашего жилья. Госпошлина для получения техпаспорта на квартиру до 100 кв. м. стоит около 15 000 рублей. Наши услуги по оформлению документов БТИ стоят также 15 000 рублей. Занимает процесс получения техпаспорта примерно 1 месяц.
Обращение в БТИ для получения техпаспорта на квартиру – один из первоначальных этапов при оформлении перепланировки квартиры. Перед началом согласования вам нужно обратиться в территориальный отдел бюро технической инвентаризации и запросить поэтажный план квартиры с экспликацией – на основании этих документов вы сможете получить бесплатную консультацию в АПМ-1, а дальше проектная компания будет готовить проект вашей перепланировки.
Техпаспорт БТИ также входит в перечень обязательных документов при обращении в Мосжилиспекцию – с первоначальным планом квартиры инспекторы МЖИ будут сравнивать и проект перепланировки, и дальнейший ремонт в вашей квартире.
Получение технического паспорта квартиры обязательно при любой перепланировке вашего жилья, так как на его основании готовится проект переустройства, а техпаспорт входит в список документов для Мосжилинспекции.
Оформлять первичный техпаспорт самостоятельно необходимо в том случае, если вы купили квартиру в новостройке, и застройщик не поставил дом на учет в БТИ. Есть ли на вашу квартиру техпаспорт, можно выяснить в управляющей компании.
Перед началом оформления первичной документации обязательно получите у нас бесплатную консультацию – мы расскажем вам порядок действий, а также как избежать проблем с БТИ в виде плана квартиры в красных линиях.
Нет, при обнаружении незаконной перепланировки БТИ вас не штрафует. Это ведомство лишь готовит план квартиры в красных линиях, и дальше вы не сможете сделать свою перепланировку, пока не согласуете те расхождения с данными техпаспорта, которые найдет техник БТИ. А вот для того чтобы согласовать незаконную перепланировку, вам придется выплатить штраф, который назначит Мосжилинспекция. Согласно ст. 7.21 КоАП РФ он составляет от 2000 до 2500 рублей на каждого собственника квартиры.
