- Перепланировка и переустройство – что это и в чем разница
- Постановление, отвечающее за перепланировку нежилого помещения в МКД
- Кто может согласовывать перепланировку нежилого помещения
- Какие работы не нужно согласовывать при ремонте нежилого помещения в МКД
- Основные требования к перепланировке нежилого помещения в жилом доме
- Как происходит согласование перепланировки
- Какие разрешения нужны для нежилого помещения
- Узаконивание перепланировки помещения с антресолью в МКД
- Согласование кафе с антресолью в МКД
- Документы для согласования
- Вывод
Чаще всего владельцу нежилого помещения хочется сделать ремонт, чтобы он полностью подходил под нужды бизнеса. И в большинстве случаев такой ремонт превращается в перепланировку или переустройство.
По нормам 2026 года помещение должно четко соответствовать тому бизнесу, который в его стенах предполагается – это могут быть магазин или офис, аптека или клиника, булочная или ресторан. Для каждого из этих направлений есть четкие требования, а на перепланировку должно получаться разрешение.
За согласование перепланировки или переустройства отвечает орган местного самоуправления – в Москве это Мосжилинспекция.
В статье расскажем:
- чем перепланировка отличается от переустройства;
- что нужно знать, начиная ремонт нежилого помещения в МКД – многоквартирном доме;
- какие разрешения необходимо иметь на руках и где их получать;
- порядок согласования и документы.
Перепланировка и переустройство – что это и в чем разница
Чтобы точно понимать, какие разрешения получать и в какой очередности, сначала нужно разобраться, что будет в помещении – перепланировка или переустройство. Зачастую это все происходит вместе, однако разница в понятиях есть.
Перепланировка – это изменение конфигурации помещения. Чаще всего она включает в себя:
- возведение новых стен или перегородок, увеличивающих весовую нагрузку на несущие элементы конструкции;
- перенос и создание вспомогательных элементов – окон, лестниц, антресолей;
- создание новой входной группы с дверью, крыльцом;
- изменение размеров оконных или дверных проемов либо их устройство в несущих конструкциях или межквартирных перегородках;
- переоборудование окон в двери и наоборот;
- устройство навесов или козырьков;
- монтаж рольставней, антенн, внешнего блока системы кондиционирования.
Переустройство – это строительные работы, связанные с переносом инженерных коммуникаций, санитарно-технического оборудования. В отличие от перепланировки, при них не меняется конфигурация помещения. То есть площадь остается прежней, все стены остаются на своих местах. К переустройству относятся:
- установка электроплит взамен газовых плит;
- перенос нагревательных сантехнических и газовых приборов;
- устройство новых и переоборудование существующих туалетов, ванных комнат;
- прокладка новых или замена существующих подводящих и отводящих трубопроводов, электрических сетей и устройств, для установки душевых кабин, «джакузи», стиральных машин повышенной мощности и других сантехнических и бытовых приборов нового поколения.
Перепланировку и переустройство объединяет то, что их нужно согласовывать. Для этого готовится проект перепланировки, а все изменения обязательно нужно вносить в технический паспорт помещения и обновлять данные в Росреестре.
Узнайте, с чего начать перепланировку нежилого помещения и какие документы нужны в вашем случае:
Здравствуйте! 👋 Вы можете задать мне любой интересующий вопрос в WhatsApp. Получите консультацию специалиста или отправьте нам на предварительную оценку необходимые документы.Задайте вопрос эксперту в WhatsApp
Частые вопросы нашим экспертам
Чтобы задать вопрос в WhatsApp отсканируйте QR-код с телефона.Диалог с экспертом
откроется в приложении.
Постановление, отвечающее за перепланировку нежилого помещения в МКД
Согласование перепланировки нежилых помещений в жилом доме регулируется постановлением Правительства Москвы № 508, принятым в декабре 2011 года. Последняя редакция – №1083 от 15.06.22.
В документе детально прописан каждый этап согласования и все требования к перепланировке помещений в жилом доме.
Если перепланировка помещения только планируется, то необходимо обязательно получить соответствующее разрешение на перепланировку. В Москве этим занимается орган местного самоуправления – Мосжилинспекция. Причем, с недавних пор туда не нужно ходить – все документы направляются онлайн через портал mos.ru.
Кто может согласовывать перепланировку нежилого помещения
Фактический «хозяин» для процедуры согласования не принципиален. Им могут заниматься:
- собственники нежилых помещений – как физические, так и юридические лица;
- наниматели жилого помещения по договору социального найма, расположенного на территории Московской области;
- компании, занимающиеся согласованием. Если вы владеете нежилым помещением, но не хотите или нет времени погружаться в процесс согласования, на помощь придет PEREPLAN.
По доверенности мы сами соберем все документы, разработаем проект перепланировки и техническое заключение, посетим Роспотребнадзор и другие органы, а также подадим документы на согласование, доведя дело до конца. А вы просто получите обновленные документы БТИ и Росреестра.
Читайте также: перевод квартиры в нежилое помещение и апартаментов – в жилое.
Какие работы не нужно согласовывать при ремонте нежилого помещения в МКД
К ним относится только косметический ремонт, когда:
- внутри помещения будет изменена лишь отделка с покраской стен, оклеиванием обоев, оштукатуриванием стен;
- будет заменяться санитарно-техническое оборудование на аналогичное по размерам, без изменения места расположения;
- демонтируются встроенные элементы мебели, не обозначенные в технической документации помещения БТИ. Однако если они в плане БТИ есть, это уже нужно согласовывать. Например, встроенные шкафы или антресоли, которые есть в техпаспорте.
Основные требования к перепланировке нежилого помещения в жилом доме
Главное условие в 2026 году – это четко обозначенный функционал нежилого помещения. По опыту PEREPLAN чаще всего перепланировку нежилых помещений делают под:
- Магазины продовольственных и непродовольственных товаров, аптеки;
- Офисы;
- Кафе, рестораны, бары, кофейни, закусочные;
- Салоны красоты;
- Медицинские клиники и стоматологии.
Определиться с тем, что будет расположено в помещении, необходимо еще до начала согласования – перепланировки свободного назначения не существует.
В проектной документации необходимо указать, для чего рассчитано помещение, так как каждый функционал имеет свои нюансы:
Для каждого помещения, рассчитанного под тот или иной функционал, есть требования. Например, минимальные нормы помещений или условия для работы.
В офисе – это количество рабочих мест, наличие естественного освещения, в магазине – сколько человек одновременно могут находиться в помещении. Важны такие «мелочи», как наличие двух раковин или моек для ног в салоне красоты,который будет предоставлять услугу по педикюру. Или – покрытие пола. Для супермаркетов и парикмахерских оно одно, а для офисного помещения – может быть другим.
Пример перепланировки в ветеринарной клинике. Здесь была сделана антресоль с лестницей, на которой расположились кабинеты для приема пациентов. Внизу же находится помещение с другим функционалом:
Антресоль – в принципе довольно популярное решение при перепланировке нежилого помещения, которое помогает использовать площадь максимально полезно и даже увеличивать ее до 40%. Вот еще один пример уже готового и согласованного ремонта в нежилом помещении – это стоматология:
План помещения для этой стоматологии после перепланировки из проектной документации:
Если предполагается арендный бизнес, и пока непонятно, кто будет снимать ваше помещение, легче всего согласовать ремонт под магазин непродовольственных товаров или административно-офисное помещение. Однако к моменту выхода на объект инспектора Мосжилинспекции ремонт должен соответствовать функционалу помещения.
В зависимости от функционала в проект перепланировки могут быть добавлены дополнительные разделы:
- о технологиях, где будут описаны все процессы производства;
- о вентиляции и кондиционировании, а также акустические расчеты, которые покажут, что вентиляционное оборудование не превышает допустимый уровень шума;
- если затрагивается фасад здания, то необходим раздел по фасаду с фотофиксацией текущего положения, а также фотомонтажом фасада после ремонта. Также в проект входит план благоустройства – как будут подходить к помещению посетители, где будут стоять урны и так далее;
- если будет антресоль, то добавляется конструктивная часть с расчетами по нагрузке на несущие конструкции здания от стоек антресоли и схему ее возведения со всеми креплениями, монтажом лестницы.
По требованиям для нежилых помещений проект должен содержать раздел, описывающий возможности доступа в помещение маломобильных посетителей. В одних случаях это могут быть автоматические подъемники, в других – пандусы, которые имеют свои нормы по размерам и ширине, углам наклона. Этот момент – индивидуальный.
Вот пример пандуса, выполненного для маникюрного салона:
Есть легкие функционалы нежилых помещений – например, административно-офисный или магазин непродовольственных товаров. К ним у Роспотребнадзора меньше всего требований. Больше всего условий к салонам красоты, пекарням, продовольственным магазинам, медицинским лабораториям и клиникам, кафе и ресторанам.
Реальный пример: перепланировка нежилого помещения была согласована под магазин непродовольственных товаров, а в итоге собственник открыл там супермаркет. На углу дома установили громкие вентиляционные системы. Такого быть не должно.
Вентиляция начала шуметь, жители второго этажа пожаловались на это в жилищную инспекцию, и перепланировка, согласованная не под нужный функционал, всплыла. Узаконить это уже не получится – если вентиляция действительно шумит и мешает, то ее попросят убрать.
Самый важный совет: заранее обдумать функционал помещения и только после этого согласовывать перепланировку, так как проектная документация для магазина непродовольственных товаров и супермаркета содержит разные разделы.
Читайте также: согласование перепланировки нежилого помещения под офис, кафе, магазин или салон красоты.
Как происходит согласование перепланировки
Его можно разделить на три этапа:
- Первый – получение согласования проведения работ по переустройству и (или) перепланировке помещения;
- Второй – подтверждение завершения работ по переустройству и (или) перепланировке помещения и получение акта.
- Третий – подготовка обновленного технического плана помещения, внесение изменений в БТИ и регистрация изменений в Росреестре.
Какие разрешения нужны для нежилого помещения
Перепланировка нежилого помещения в жилом здании согласовывается с:
- Мосжилинспекцией;
- Центром гигиены и эпидемиологии либо организации, аккредитованной им. PEREPLAN сотрудничает с органом инспекции «Анкониан». С ними мы быстрее получаем разрешения для нежилых помещений наших заказчиков – можно заключить договор удаленно, минимум бумажной волокиты;
- авторами проекта дома либо с ГБУ «Экспертный центр», если затрагиваются несущие конструкции.
На некоторый ремонт нужны разрешения собственников квартир дома, в котором находится нежилое помещение. Например, на монтаж пандуса или создание нового входа нужен протокол собрания жильцов, в котором не менее двух третей собственников не против изменения фасада здания.
Если помещение расположено в нежилом отдельно стоящем здании, то перепланировка согласовывается в БТИ после ремонта. Однако все требования, описанные выше, должны быть учтены.
По окончании согласования необходимо внести изменения в ЕГРН и, при необходимости, оформить лицензию на ведение какой-либо деятельности.
Согласованная перепланировка нежилого помещения – главное условие для получения лицензии на работу, которая может потребоваться в ряде случаев. Например, для оказания медицинских услуг, продажи алкоголя или табачных изделий, ведения образовательной деятельности.
Читайте также: согласование перепланировки нежилого помещения для получения лицензии на работу.
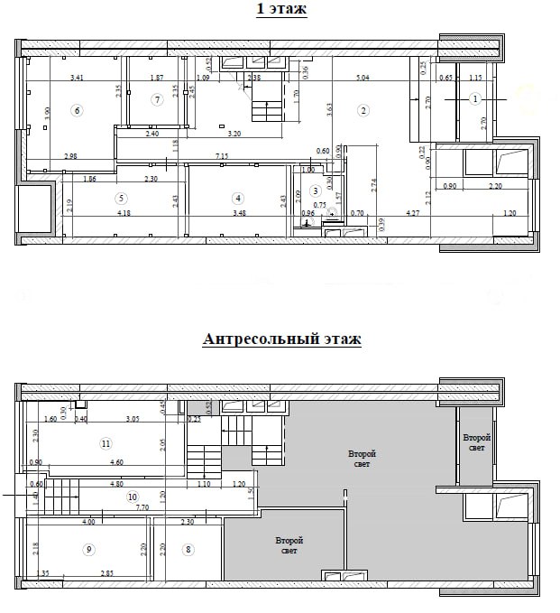
Узаконивание перепланировки помещения с антресолью в МКД
Собственник сначала сделал ремонт, заранее узнав все нормы и получив консультацию в PEREPLAN, затем приступили к согласованию.
Площадь всего помещения – 450 квадратных метров с небольшой антресолью 40 «квадратов». Также сделано несколько проемов в несущей стене. Помещение имеет два входа – один ведет сразу на второй антресольный этаж, другой – на первый.
Поскольку были затронуты несущие стены и сделана антресоль, в первую очередь получили в ГБУ «Экспертный центр» техническое заключение о безопасности и допустимости ранее выполненных работ. Затем документы прошли согласование в Мосжилинспекции.
Согласование кафе с антресолью в МКД
Собственник не проходил первичную инвентаризацию – сразу после покупки помещения обратился в PEREPLAN. Стояла задача сделать антресоль, чтобы увеличить полезную площадь помещения с потолками высотой 6 метров, и полностью согласовать ремонт.
Мы поставили помещение на первичный учет, получили первичный технический паспорт. Затем оформили заключение ГБУ «Экспертный центр» о возможности возведения антресоли и разработали проект с конструктивными решениями по монтажу самой антресоли.
Проектная документация прошла экспертизу в организации, аккредитованной Роспотребнадзором, на соответствие всем СанПинам.
После этого получили разрешение в Мосжилинспекции, смонтировали антресоль, вызвали инспектора на приемку квартиры, получили акт о завершенном переустройстве и новый технический паспорт.
Завершающий этап согласования – внесение изменений в Росреестре с учетом новой площади помещения. Она увеличилась за счет антресоли. Заказчик получил полностью «чистые» документы.
Планировочное решение и дизайн-проект разработал дизайнер Сергей Конев.
Фото и проектная документация здесь:
Документы для согласования
После того, как определились с функционалом помещения и четко поняли, что будет в нем после ремонта, нужно получить технический паспорт помещения или поэтажный план БТИ с экспликацией – на основании них разрабатывается проектная документация.
До конца 2026 года план БТИ может быть старым, и если последние обмеры проводились 5 лет назад или раньше, пока не требуется его обновления.
Затем готовится проект перепланировки. Он может быть разработан только компанией с допуском СРО. У PEREPLAN он есть – допуск №1891, выданный СРО «МежРегионПроект».
Пример проекта перепланировки для нежилого помещения в жилом доме. Здесь ремонт не затрагивал несущие конструкции и фасад. В пояснительной записке указан функционал помещения – под офисы, а далее следует список всех работ:
В проекте обязательно схематично показываются все запланированные работы в помещении. При приемке Мосжилинспекция обязательно проверит, соответствует ли ремонт проектной документации. Посмотреть проект перепланировки полностью можно здесь.
Параллельно с проектом разрабатывается техническое заключение: если затрагиваются несущие стены, перекрытия или фасад, то его готовят авторы проекта дома либо специалисты ГБУ «Экспертный центр». Если нет, тогда можем разработать мы.
Заключение Центра гигиены и эпидемиологии – оно получается при любой перепланировке нежилого помещения в МКД вне зависимости от функционала. Вот пример заключения от Роспотребнадзора:
Если во время ремонта нежилого помещения меняется фасад дома, то необходим протокол собрания собственников жильцов и их согласие на это. Разрешение у жителей нужно спрашивать на установку крыльца с лестницей, монтаж козырька, замену окна на входную дверь, создание пандуса.
Протокол не нужен только в одном случае – если вход в нежилое помещение будет переоборудован из витринного окна в пол, а также если не затрагивается конструкция самой наружной стены.
Когда все разрешения собраны, документы подаются в Мосжилинспекцию. Она выдает распоряжение на перепланировку, после чего проводится сам ремонт (с 2022 года на это отводится не 12, а 18 месяцев).
По окончании работ нужно получить акт о завершенной перепланировки – для этого на объект выезжает инспектор Мосжилинспекции. И уже после этого получается новый техпаспорт БТИ и вносятся изменения в Росреестр.
Читайте также: перевод квартиры в нежилое помещение и апартаментов – в жилое.
Вывод
Во время перепланировки и переустройства нежилого помещения может «всплыть» много нюансов. Например, вы можете не знать, что в Москве запрещен сайдинг при отделке фасада нежилого здания. Или что в комитете по архитектуре и градостроительству могут пропустить далеко не каждый козырек при входе в ваше помещение – к ним тоже есть требования. И мы все это знаем.
Процесс согласования перепланировки может показаться сложным, если вы делает его в первый раз. Поэтому мы рекомендуем обратиться к нам в PEREPLAN:
- поможем получить все разрешения и подскажем, как это сделать проще всего и в какой последовательности;
- соберем документы для Мосжилинспекции так, что к ним не будет вопросов;
- проконтролируем ход ремонта, чтобы работы были выполнены в полном соответствии с согласованным проектом;
- получим новый техпаспорт помещения и обновим данные в Росреестре.
Напишите нам, чтобы узнать сколько времени займет согласование вашей перепланировки:
Оставьте заявку на бесплатную консультацию
Часто задаваемые вопросы о перепланировке нежилых помещений
Среди самых частых работ, которые проводят собственники нежилых помещений и которые нужно согласовывать, это возведение новых стен или перегородок; создание новой входной группы с дверью, крыльцом; изменение размеров оконных или дверных проемов либо их устройство в несущих конструкциях или межквартирных перегородках; переоборудование окон в двери и наоборот; устройство навесов или козырьков; монтаж рольставней, антенн, внешнего блока системы кондиционирования.
Согласование любого типа помещений «под ключ» – от 150 000 рублей. В эту стоимость входят разработка проекта перепланировки с назначением помещения и техническое заключение, подача документов в госорганы и работа до положительного результата Мосжилинспекции, получение новых документов в БТИ.
Стоимость перепланировки с изменением фасада без учета подготовки протокола жильцов начинается от 500 000 рублей.
Какой орган местного самоуправления занимается согласованием перепланировки нежилого помещения в жилом доме?
В Москве этим занимается Мосжилинспекция. Она выдает распоряжение о перепланировке, а также принимает перепланировку, выезжая на объект, и выдает акт о завершенном переустройстве.
Да, но только в одном случае: если квартира находится на первом этаже дома или на втором и выше, но внизу находятся нежилые помещения – офисы, магазины, больницы, кафе и так далее.
Нет, ПВХ-сайдинг в Москве запрещен, как в фасадах нежилого, так и жилого здания. Также нельзя использовать профилированный металлический лист, если это не промышленный объект, асбесто-цементные листы, самоклеющиеся пленки, баннеры.






